R5311846, Plot Residential in Selwo
Ref # : R5311846
For sale € 395,000
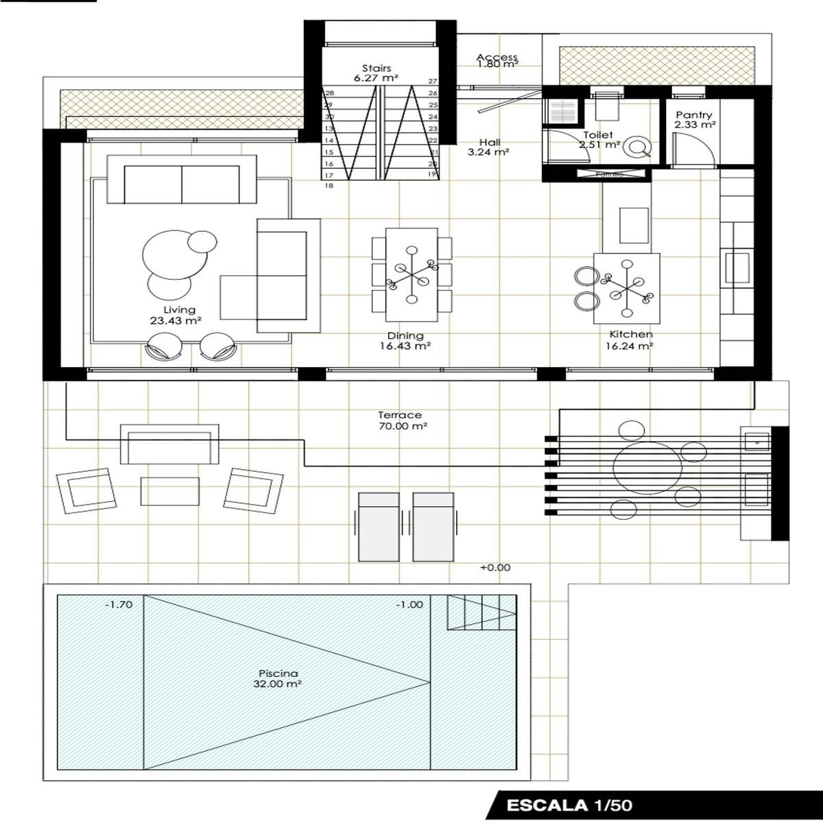
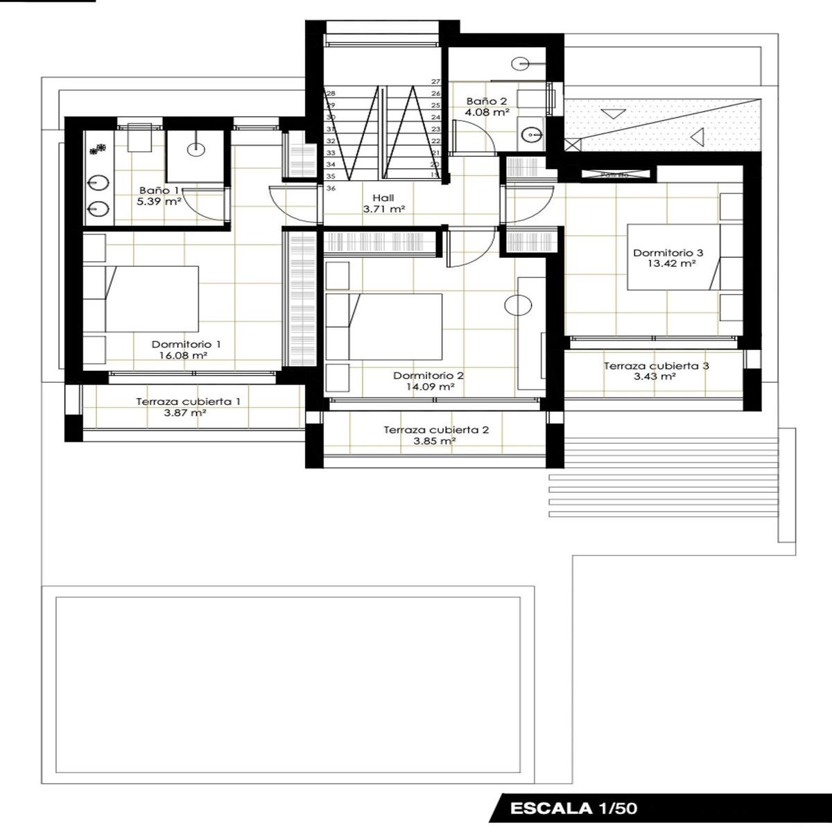
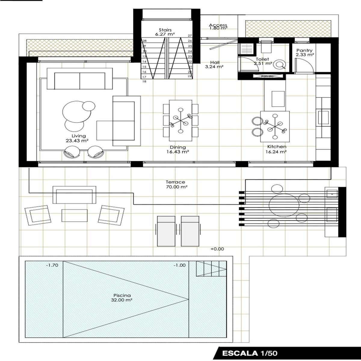
Plot with project for a villa in La Boladilla Resort, New Golden Mile, Estepona
Only 400 metres from the sea, within a gated luxury villa community
500 m² plot located in La Boladilla Resort, an exclusive gated community composed of approximately 100... Plot with project for a villa in La Boladilla Resort, New Golden Mile, Estepona
Only 400 metres from the sea, within a gated luxury villa community
500 m² plot located in La Boladilla Resort, an exclusive gated community composed of approximately 100 plots designated for detached villas with consistent architectural standards, ensuring privacy, coherence and a high-quality residential environment.
The plot includes a project to build a villa distributed over two floors plus basement, with an approximate buildability of 225 m², providing an ideal base to develop a modern home for family living or investment purposes.
After a period of administrative delay, the town hall has reactivated building licences, allowing construction to start or resume, making this property a particularly attractive opportunity for developers, investors or end buyers.
Located on the New Golden Mile, in an area experiencing strong growth and international demand, this plot stands out for its proximity to the beach, its established surroundings and its appreciation potential.
An excellent opportunity to build a luxury villa to live in, develop for resale or hold as a long-term investment.
General Amenities
Excellent
Exterior Amenities
Private
Landscape Amenities
South
Close To Schools
Urbanisation
Security Amenities
Electricity
Drinkable Water
Investment
24 Hour Security
Golf
Beachfront
Bargain
Reduced
Cheap
Properties in same Property type
R5321059, Apartment Penthouse in Estepona
For sale
€ 510,000
R5237023, Townhouse Terraced in New Golden Mile
For sale
€ 750,000
R5147527, Villa Semi Detached in Sierra Blanca
For sale
€ 2,550,000
R5324593, Apartment Middle Floor in Estepona
For sale
€ 298,500












