R5080159, Plot Residential in Riviera del Sol
Ref # : R5080159
For sale € 1,870,000
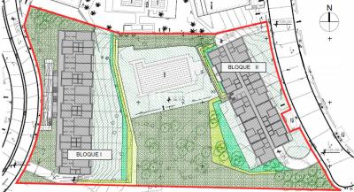
Land in Riviera del Sol with the possibility of developing 64 apartments with 2 and 3 bedrooms, each one with its own storage room and parking space. Buildable area of 7.080 m2 for residential use, compatible with hotel use. Construction license... Land in Riviera del Sol with the possibility of developing 64 apartments with 2 and 3 bedrooms, each one with its own storage room and parking space. Buildable area of 7.080 m2 for residential use, compatible with hotel use. Construction license granted in 2012 and expired. Preliminary project for two residential blocks with 7.017 m2 built above ground. Transaction subject to VAT (21%).
Landscape Amenities
South
Panoramic
Urbanisation
Security Amenities
Investment
With Planning Permission
Bargain
Properties in same Property type
R5041777, Townhouse Semi Detached in Mijas Costa
For sale
€ 460,000
R5308696, Villa Detached in Nueva Andalucía
For sale
€ 850,000
R4677286, Villa Semi Detached in Nueva Andalucía
For sale
€ 5,250,000
R5196688, Apartment Middle Floor in Aloha
For sale
€ 875,000






