R5199793, Plot Residential in Mijas Costa
Ref # : R5199793
For sale € 695,000
Opportunity in the heart of Mijas Costa
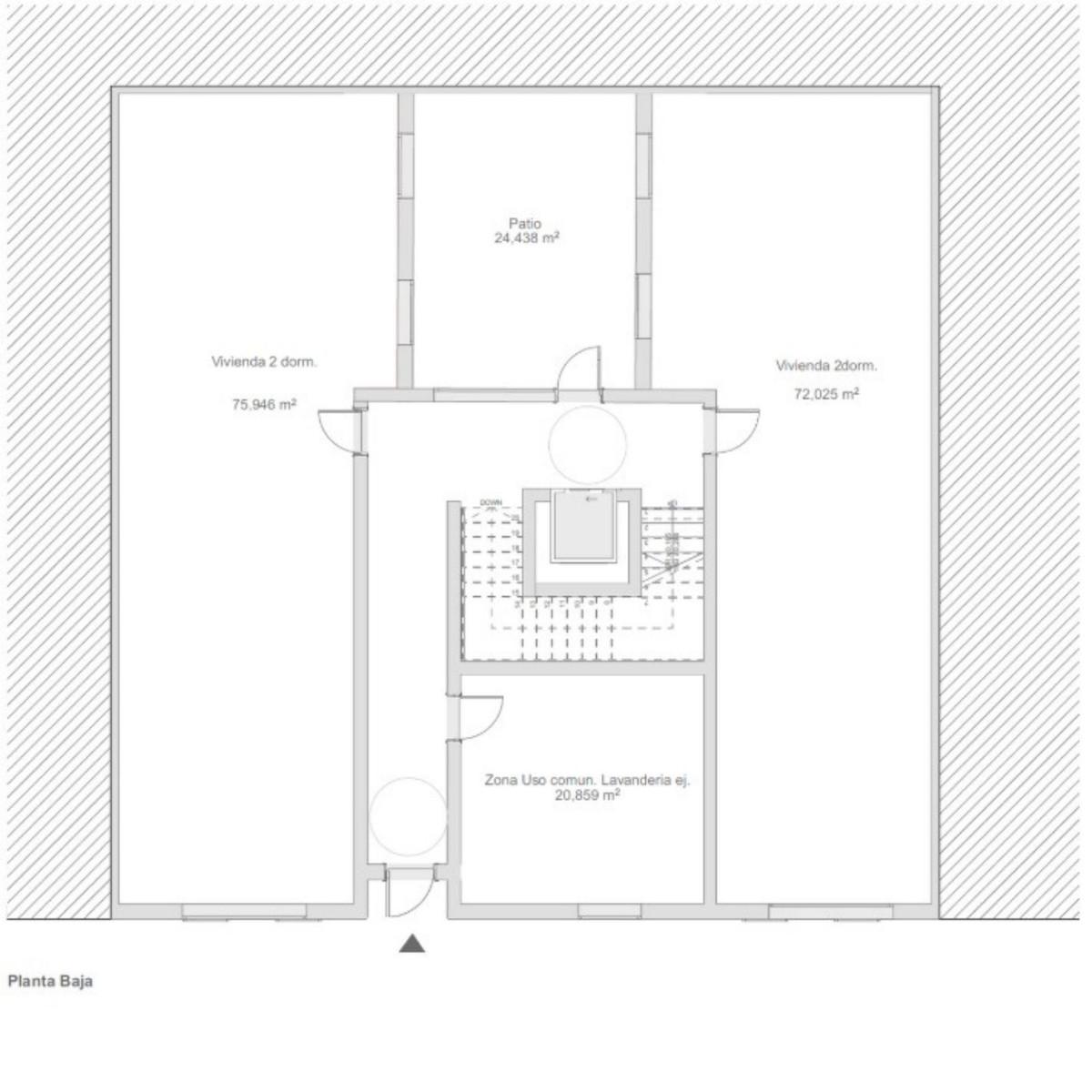
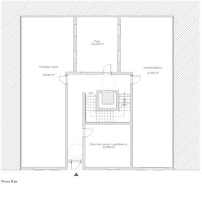
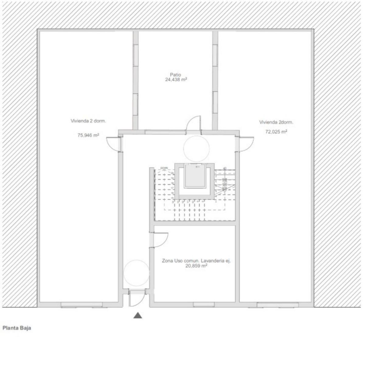
Charming old house located right in the center of Mijas Costa, with an approved project to build a new development of 10 apartments.
Enjoy an unbeatable location close to all amenities â shops, restaurants,... Opportunity in the heart of Mijas Costa
Charming old house located right in the center of Mijas Costa, with an approved project to build a new development of 10 apartments.
Enjoy an unbeatable location close to all amenities â shops, restaurants, transport, and everything you need for a comfortable lifestyle.
Perfect as an investment or residential development in one of the most sought-after areas of the Costa del Sol.
"Includes current plot and architectural project."
???? Don't hesitate to contact us for more information!
Properties in same Property type
R5350792, Apartment Penthouse in La Alcaidesa
For sale
€ 1,190,000
R5018266, Villa Detached in San Pedro de Alcántara
For sale
€ 2,990,000
R5250145, Apartment Penthouse Duplex in Benahavís
For sale
€ 290,000
R4672702, Apartment Ground Floor in Mijas
For sale
€ 438,000












